Ptarmigan Design
Our Home Design Services
Functional & inviting spaces, you want to be in.
-

Remodel
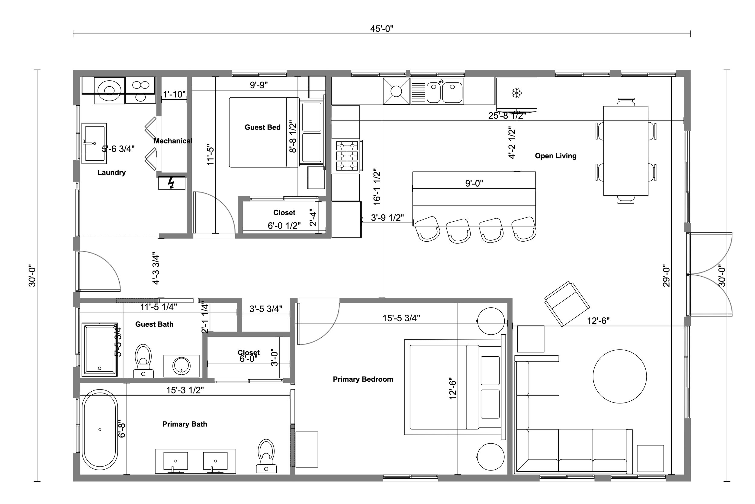
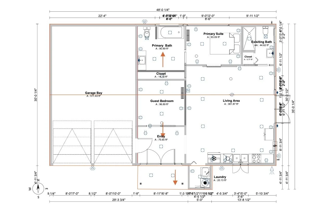
Looking for an interior or exterior remodel for an existing residence? Ptarmigan Design can provide 2D and 3D renderings and to-scale design drawings to help you reimagine your dream home.
We take accurate measurements of the existing structure, then provide design consultation to meet your needs and dreams for your remodel goals. Our formal site plans and comprehensive design plans makes it easy to send to an engineer for final edits. Or if no engineering work is needed, we can help get your city and/or county permitting sent and approved so you can start your remodel as soon as possible.
-

Interior Design
Whether you’re looking for a new build, full interior design plan or just need help with kitchen layout or organization, let Ptarmigan Design help you visualize your space for your unique personal needs and tastes. Our functional and creative design plans just make sense of the space, allowing homeowners to truly enjoy living and being in their space.
We listen our clients desires to help them pick out everything from paint color and furniture to fixtures and appliances. Ptarmigan Design works with some of the premier finish craftsmen in the area- from cabinets and trim to tile and custom blinds. Looking for sustainable landscape designers or even just a reliable electrician? We have our list of trusted partners we stand behind.
Let us take the hard work out of visualizing your finished product with professional 3D renderings and drawings.
-

Project Management
Need help organizing your contractors and getting the right documents to the right people? Ptarmigan Design can be your main contact for contractors, subs, and permitting. Whether you live near or far, we can manage your project from start to finish. As a licensed contractor we can provide general contracting services to help oversee your project.
We specialize in client consultation to help your project move as smoothly and efficiently as possible. We have experience in full zero to showcase home builds. From managing site clearing and septic installation to finishing touches and final inspections, Ptarmigan Design is here to help you get into your dream home. We understand the process can be confusing and time consuming, so it’s nice to have a caring and confident team working for you.
Projects
Ptarmigan Design
Remodel :: Design :: Consult
Specializing in site planning, functional design, and interiors.
Contact
Erin L Kessler :: Designer
ErinK@PtarmiganPtrails.com
Kessler.Erin20@gmail.com
(772) 633-7385